「極上平屋。」福山市御幸町

「極上平屋」
先行販売開始
日程:ご希望の日をご指定ください
時間 : 10:00-18:00
場所:広島県福山市御幸町森脇付近
平日・土日祝ともに予約できます
現地駐車場有
※詳細場所はご予約時にお伝えさせていただきます。
※お打ち合わせはご都合のいい場所に伺います。
庭の先からのぞくのは、山々の雄大な稜線。
家の中にはゆったりとした時間が流れます。
「極上の空間」とは何か考えた時、頭を巡ったのは
何年経っても色褪せない空間。
素材は勿論のこと、しつらえにもこだわりました。
「家」「家具」「庭」は暮らしに関係する要素。
全ての要素が連動すると特別な空間となり
上質な暮らしを叶えてくれます。
私達が考える「極上」。
是非言葉ではなくご体感ください。
お待ちしております。
販売価格
4,100万円
展示家具・家電付き
仕様詳細
長期優良住宅|耐震等級3
UA値 0.40(断熱等級6)|BEI 0.65
W断熱工法|100年腐らない緑の柱使用
全室漆喰|無垢床
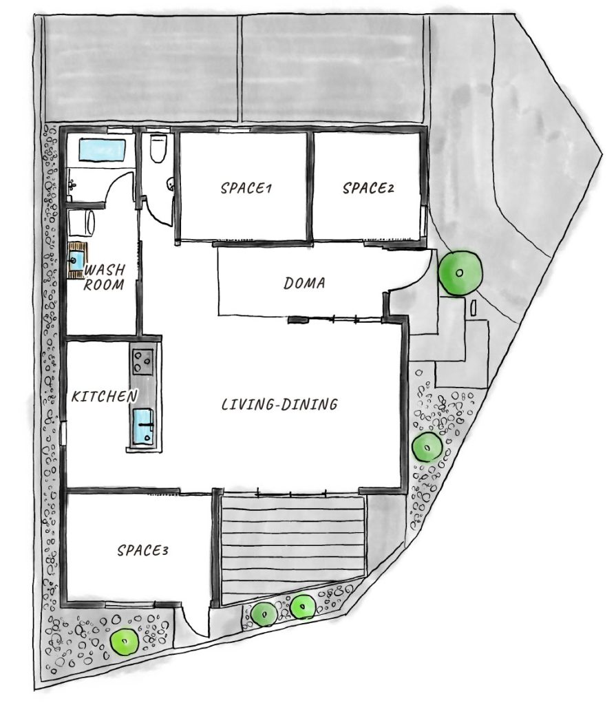
PLAN










